Gebäudeart: Einfamilienhaus

Aufgabenstellung: Haus in extremer Hanglage

Fertigstellung: 1981

Planung: Fritz Waclawek

Konsulenten: Tragwerk: Prof Dr. W. Ziesel

Bauleitung: Architekt Dipl.Ing. F. Waclawek

Ausführende: BM Gellner, Grafenbach, NÖ

Kosten: 10 Mio. Schilling

Flächen:
Grundstück: 700 m²
Nutzfläche: 380 m²
bebaute Fläche: 200 m²

Nachbarn: Lage in den Weingärten

Widmung: Bauklasse 1 – Höhe max. 7,5 m

Höhenlage: über dem Tal, nebelfrei

Baugrund: Himmelsrichtung: Südhang
Vegetation: alter Weingarten
Boden: feinster Lössboden, Mächtigkeit ca 10m
Zugang: von der hangseitigen Straße, über einen Weg den Hang hinunter, über eine Stiege
Zufahrt: direkt in die Garage (extreme Lage)
Ausblick: über das Tal, über die Weingärten

Gebäudebeschreibung: Orientierung: Südorientierung der talseitig gelegenen Wohn und Aufenthaltsräume
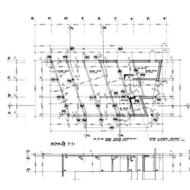
Lösungstyp: tragende Teile sind die Aussenmauern, im Gebäudeinneren tragen die Stützen, die Träger sind dem Spannungsverlauf entsprechend geformt. Das rechtwinklige Ordnungssystem / Koordinatensystem ist nach Südwesten gerichtet, parallel bzw. senkrecht zur Hang – Fall-Linie. Durch die „Verbindung“ der versetzten Koordinatenpunkte ist ein neues Ordnungssystem eingeführt, es nimmt Bezug auf das Grundsystem und stellt den Bezug zur reinen Südlage dar und reagiert damit auf die vorgegebenen schräg verlaufenden Baufluchtlinien: am Bau sichtbar wird das überlagerte Koordinatensystem durch die reine Südorientierung der talseitigen Fassade und die Richtung der Träger über der Decke des Eingangsgeschosses. Die Decke über dem Gartengeschoss nimmt ebenfalls Bezug auf das rechtwinkelige Koordinatensystem, die Lage der Hauptträger in diesem Geschoss folgt der Falllinie des Hanges. Aus diesen Konstruktionen ergeben sich an den Hausassenseiten Pfeilerhöhen von ca. 6m, die Stützen im Gebäudeinneren sind versetzt und nehmen Bezug auf die unterschiedlichen Systeme. Zum Ausdruck kommen „ruhige und dynamische Trag – Systeme“ in den unterschiedlichen Geschossen: das Deckensystem im Eingangsgeschoss ist entsprechend dem Spannungsverlauf ausgebildet, das heisst, entsprechend den Stützweiten 3 und 6m und den diesen Stützweiten entsprechenden Feld- und Stützmomenten. Daraus ergeben sich die unterschiedlichen Trägerunterkanten mit einer „geschwungenen Kontur“. Südseitig ist die Aussenwand um eine halbe Achse zurückgesetzt, die dem Schlafräumen vorgelagerte Terrasse beschattet die Glaswand, eingebaute Jalousien werden vom Dachgeschoss ein Geschoss tief ausgefahren, der Zugang zum halbelliptischen Schwimmbad (mit gedrehter Achse) ist also beschattet und „frei“.

Materialien: Hochlochziegel, Stahlbeton, Leccabeton, teilweise Quarzgläser (UV-Licht-Durchlässiger). Die Gebäudeaussenhülle wurde Ost- West- und Südseitig aus vorgefertigten Aluminium- Elementen hergesellt. Das flache Satteldach ist mit Aluminiumtafeln gedeckt. Der Biokeller unter der Garage ist mit Vollziegeln in den Lösssboden gemauert.

Energie: Solarstrategie Verlustminimierend, Südfenster für solare Gewinne.